Openingsuren

09.00 - 17.00 of op afspraak
Terug naar boven
No items found.
No items found.
No items found.
€ 639.000
Prijs op aanvraag
Verkocht
Gouverneur Roppesingel 165
3500
Hasselt
-
Hasselt

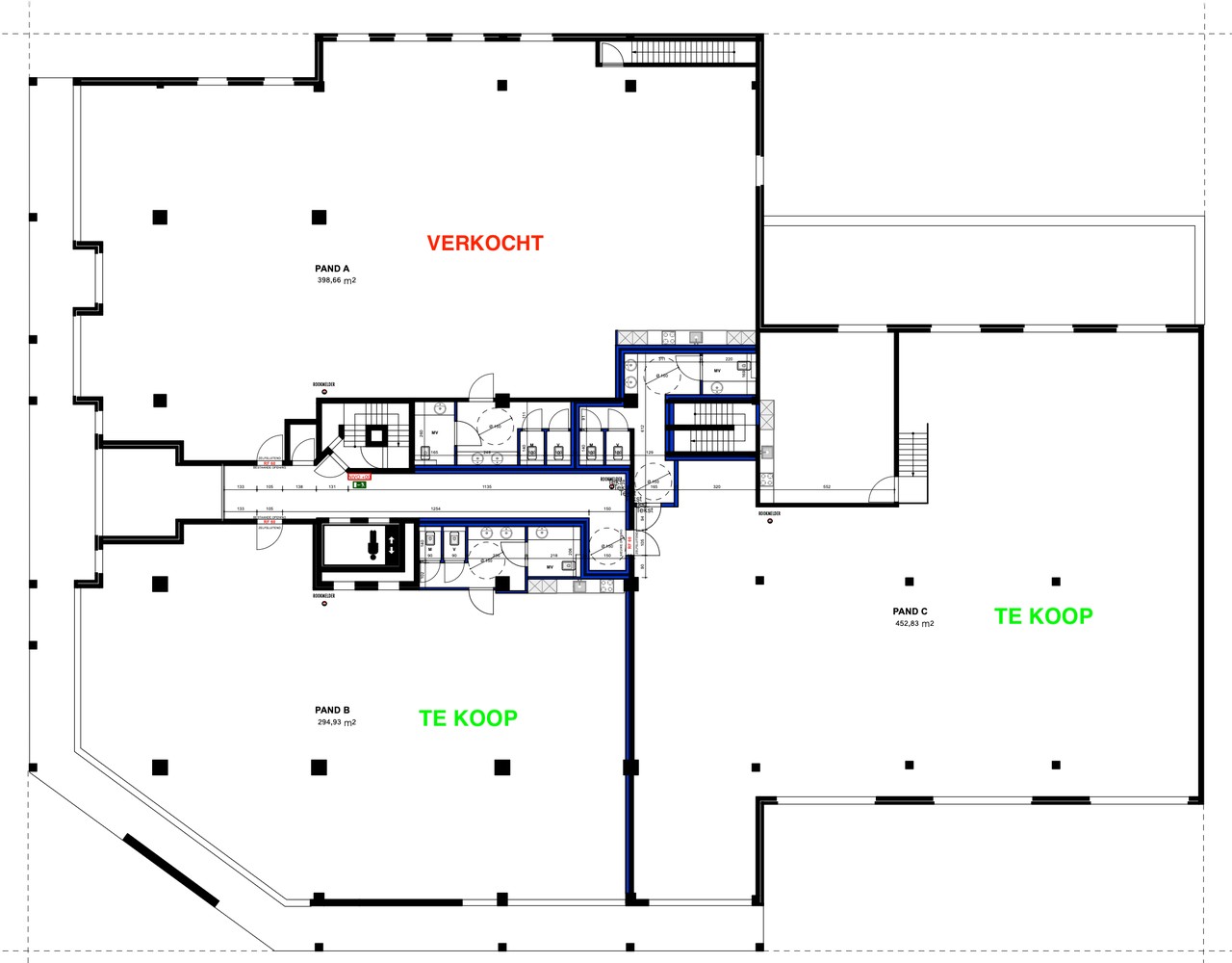
Unieke kans op topligging in Hasselt – gelijkvloerse commerciële ruimte te koop (295 m²)

Op zoek naar een strategisch gelegen commerciële ruimte met uitzonderlijke zichtbaarheid? Deze gelijkvloerse commerciële site omvat een ruime en kwalitatieve unit met een oppervlaktes van 295 m², gelegen op een absolute toplocatie: de iconische hoek van de Gouverneur Roppesingel (grote ring van Hasselt) en de Luikersteenweg, zonder twijfel één van de drukste en meest gekende kruispunten van Limburg.
De ligging vlakbij de oprit van de E313 garandeert een uitstekende bereikbaarheid, zowel voor klanten als voor medewerkers. Bovendien wordt aan de overkant van de ring, tegenover deze commerciële ruimtes, het nieuwe ziekenhuis van Hasselt gebouwd, wat deze locatie op middellange termijn een sterke meerwaarde geeft op vlak van passage, visibiliteit en commerciële dynamiek.
De ruimte is flexibel en modulair in te richten en leent zich perfect voor uiteenlopende bestemmingen zoals kantoor, medische of paramedische praktijk, showroom of andere commerciële activiteiten. De grote raampartijen langs de straatzijden zorgen voor maximale visibiliteit en een overvloed aan natuurlijk licht, wat niet alleen uw professionele uitstraling versterkt maar ook het dagelijks werkcomfort aanzienlijk verhoogt.

Ook beschikt het complex over gratis parkeergelegenheid rond het gebouw en, tegen betaling ondergronds, wat het gebruiksgemak verder optimaliseert.

Een uitgelezen opportuniteit voor ondernemers of investeerders die bewust kiezen voor een toplocatie met toekomstpotentieel, waar uw activiteit letterlijk en figuurlijk niet onopgemerkt blijft.


Handelspand B
- adres: Luikersteenweg 232
- oppervlakte: 295 m²
- prijs: € 639.000,-

Deze  commerciële ruimte is vernieuwd (2025):
- grote nieuwe raampartijen (zwarte aluminium kozijnen met dubbele beglazing)
- het pand heeft een brede nieuwe inkomdeur
- vloer is geïsoleerd en werd voorzien van een lichte keramische tegelvloer (betonlook / 80 x 80cm)
- sanitaire voorzieningen zijn geïnstalleerd: 3 toiletten waarvan 1 voor mindervaliden
- voorzieningen (watertoevoer en afvoeren) om in elk pand een keuken te installeren
- muren, plafonds  worden van een witte verfgrondlaag voorzien
- verwarmingstechnieken middels warmtepomp (lucht-lucht) dienen nog geïnstalleerd te worden (plaats voor buiten-units zijn voorzien)

Het pand is modulair in te richten, zodat het mogelijk is om deze op te splitsen naar verschillende kantoor- of praktijkruimtes:
- extra leidingen (water, afvoeren, elektriciteit) kunnen via het plafond van de kelderverdieping geïnstalleerd worden,

Parkeren:
ondergrondse commerciële parkeerverdieping voorzien (38 parkeerplaatsen, uitgebaat door een externe partij)
- gratis parkeergelegenheid vóór/rond het gebouw

Kenmerken

Bewoonbare oppervlakte

295 m²

Perceelsoppervlakte

Aantal slaapkamers

Aantal badkamers

GARAGES

Bouwjaar

1992

Renovatiejaar

2025

Epc waarde

0
kWh/m2jaar

KADASTRAAL inkomen

€ 0

Voorzieningen

Geen voorzieningen beschikbaar
Bestemming
Woonuitbreidingsgebied
VOOrkooprecht
Nee
Bouwvergunning
Ja
Watertoets
Niet overstromingsgevoelig
Verkaveling
Nee
50.9249
4367374
5.68289

Heirbaan 309

Verkocht

€ 649.000

Koop

Meer info
50.9469
4367298
5.56014

Kempenseweg 48

Verkocht

€ 645.000

Koop

Meer info
50.9033
4366280
5.68188

Fluwijnpad 3

Verkocht

€ 819.000

Koop

Meer info
50.8948
4365381
5.66451

Waterstraat 2 bus 2

Verkocht

€ 365.000

Koop

Meer info
50.89
4364564
5.66781

Bedrijfsweg 3

Verkocht

€ 499.000

Koop

Meer info
50.8991
4364562
5.67657

Tournebride 7

Verkocht

€ 575.000

Koop

Meer info
50.8293
4354828
5.53901

Op De Meer 1

Verkocht

€ 895.000

Koop

Meer info
50.9099
4354583
5.67279

Schuttershofstraat 52

Verkocht

€ 245.000

Koop

Meer info
50.7539
4352671
5.496

Sint-Medardusstraat 14

Verkocht

€ 299.000

Koop

Meer info
50.882
4352437
5.67695

Sapstraat 13

Verkocht

€ 579.000

Koop

Meer info
50.9068
4351150
5.68177

Delstraat 21 bus 2

Verkocht

€ 312.000

Koop

Meer info
50.9167
4349859
5.34788

Gouverneur Roppesingel 165 bus 102

Verkocht

€ 549.000

Koop

Meer info
50.8672
4349229
5.62534

Kiezelweg 155

Verkocht

€ 489.000

Koop

Meer info
50.8924
4346006
5.64747

Bessemerstraat 111

Verkocht

€ 225.000

Koop

Meer info
50.9087
4346786
5.68131

Keelhoffstraat 47

Verkocht

€ 249.000

Koop

Meer info
50.9045
4347225
5.67792

Seringenstraat 12

Verkocht

€ 750.000

Koop

Meer info
50.8913
4346445
5.65962

Drie Eikenstraat 14 bus 53

Verkocht

€ 449.000

Koop

Meer info
50.9012
4345985
5.63036

Roelerdreef 18

Verkocht

€ 425.000

Koop

Meer info
50.9106
4345627
5.67919

Paalsteenlaan 15 bus 4

Verkocht

€ 619.000

Koop

Meer info
50.8922
4343064
5.65062

Heuvelplein 9

Verkocht

€ 410.000

Koop

Meer info
50.9044
4341459
5.66868

Meesjesstraat 12

Verkocht

€ 1.650.000

Koop

Meer info
50.9249
4341295
5.68289

Heirbaan 309

Verkocht

€ 649.000

Koop

Meer info
50.8408
4341166
5.63031

Smisstraat 45

Verkocht

€ 795.000

Koop

Meer info
50.8945
4340968
5.66278

Koning Albertlaan 179

Verkocht

€ 660.000

Koop

Meer info
50.9469
4340576
5.56014

Kempenseweg 48

Verkocht

€ 645.000

Koop

Meer info
50.9167
4339872
5.34788

Gouverneur Roppesingel 165

Verkocht

€ 890.000

Koop

Meer info
50.9167
4339638
5.34788

Gouverneur Roppesingel 165

Verkocht

€ 639.000

Koop

Meer info
50.8966
4338919
5.66069

Waterstraat 47

Verkocht

€ 649.000

Koop

Meer info
51.089
4335250
5.6825

Drievekkenweg 70

Verkocht

€ 749.000

Koop

Meer info
50.9195
4334311
5.67833

Heidestraat 76

Verkocht

€ 790.000

Koop

Meer info
50.9577
4332619
5.67311

Jagerslaan 1 bus a

Verkocht

€ 1.290.000

Koop

Meer info
51.0975
4330685
5.69734

Ophovenstraat 125

Verkocht

€ 549.000

Koop

Meer info
50.8814
4304650
5.57225

Haenenstraat 4

Verkocht

€ 675.000

Koop

Meer info
51.0943
4301368
5.79425

Bleumerstraat 46 bus 11

Verkocht

€ 545.000

Koop

Meer info
50.8868
4280784
5.61267

Bergstraat 17B

Verkocht

€ 159.000

Koop

Meer info
50.9077
4280781
5.6687

Neerharenweg 32

Verkocht

Koop

Meer info
50.9434
4270265
5.7311

Bampstraat 43

Verkocht

€ 387.000

Koop

Meer info
51.0941
4268746
5.79411

Bleumerstraat 41

Verkocht

€ 337.000

Koop

Meer info
50.9072
4128058
5.66765

Neerharenweg 28

Verkocht

Koop

Meer info
50.8608
4112129
5.62232

Molenpoel 7

Verkocht

€ 149.000

Koop

Meer info
50.9256
4032239
5.67307

Sterrenlaan 19

Verkocht

€ 549.000

Koop

Meer info
50.7484
4032178
5.93563

Rue de la Forge 28

Verkocht

€ 140.000

Koop

Meer info
50.9087
3475395
5.67949

Schuttershofstraat lot1

Verkocht

€ 325.000

Koop

Meer info

Vragen of wenst u een bezichtiging?

Velden gemarkeerd met een (*) zijn verplicht.
Bedankt! We nemen z.s.m. contact met je op.
Oops! Something went wrong while submitting the form.