Openingsuren

09.00 - 17.00 of op afspraak
Terug naar boven
No items found.
No items found.
No items found.
€ 387.000
Prijs op aanvraag
Verkocht
Bampstraat 43
3631
Maasmechelen
-
Boorsem

Laatste van 4 moderne nieuwbouwwoningen met 3 slaapkamers en een dubbele carport, residentieel en landelijk gelegen te Maasmechelen-Boorsem

Te koop: Laatste van 4 moderne, energiezuinige nieuwbouwwoningen met warmtepomp, zonnepanelen en een dubbele carport, residentieel en landelijk gelegen te Maasmechelen-Boorsem.

Deze woning wordt instapklaar opgeleverd, inclusief vloeren, binnendeuren, keuken en sanitair (conform lastenboek). Afwerking nog te bepalen door koper, woningen zijn momenteel casco.
Mogelijkheid om een garage of tuinberging te plaatsen.
Energiezuinig: EPC-label A (E-peil E14), vloerverwarming met warmtepomp, zonnepanelen.


LOT 1 - VERKOCHT
LOT 2 - VERKOCHT
LOT 3 - TE KOOP: 5a 48ca
LOT 4 - VERKOCHT

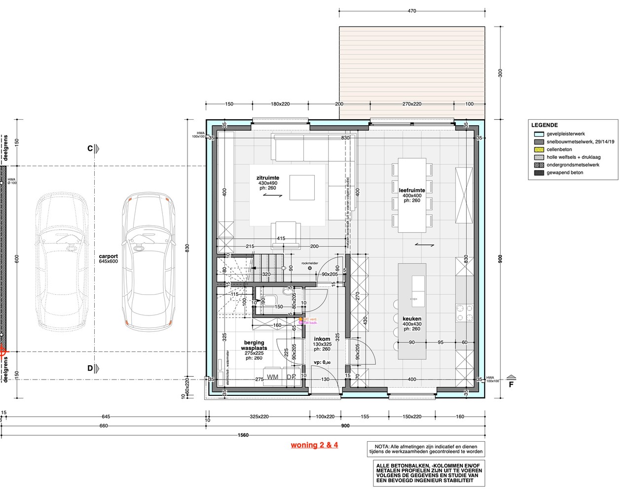
INDELING :
Begane grond 81 m² (vloerverwarming) :

- Inkomhal met gastentoilet (hangtoilet + wasbakje)
- Ruime L-vormige living (50 m²) met schuifraam naar de achtertuin
- Luxe eilandkeuken voorzien van keramische kookplaat, dampkap, oven, vaatwasser, spoelbak en koelkast
- Berging (2,75 x 2,25) met wasmachine-aansluiting en meterkast
- Carport voor 2 wagens 

Verdieping 81 m² :
- Luxe badkamer voorzien van ligbad, douche, meubel met 2 wastafels en spiegel
- Separaat toilet (hangtoilet + wasbakje)
- 3 Slaapkamers (16 m², 12 m² en 12 m²)
- Dressingruimte

Oplevering conform lastenboek (zie downloads) :
- binnenmuren behangklaar gepleisterd
- plafonds voorzien van spuitpleister
- inclusief vloeren, keukenopstelling, badkamer (ligbad, douche en dubbele wastafel) en 2 wc's naar keuze, conform budget voorzien in lastenboek
- houten trap

Extra's : warmtepomp, vloerverwarming (begane grond en badkamer), regenwaterput 5.000 ltr, pvc kozijnen met isolerende beglazing, ventilatiesysteem D, 2460Wp zonnepanelen

Prijs : € 387.000,- excl onderstaande kosten, pas te betalen bij akte
Bijkomende kosten : eventueel meerwerken, tuinaanleg, notariskosten, registratierecht à 12% op grondprijs (€ 100.000,-), btw à 21% op constructiewaarde (€ 287.000,-), aansluitingskosten riolering/water/elektra, kosten opmeting en verkaveling
Oplevering : 4 à 5 maanden na ondertekening verkoopovereenkomst
 

Kenmerken

Bewoonbare oppervlakte

162 m²

Perceelsoppervlakte

5 a 82 ca

Aantal slaapkamers

3

Aantal badkamers

1

GARAGES

Bouwjaar

2024

Renovatiejaar

Epc waarde

14
kWh/m2jaar

KADASTRAAL inkomen

€ 0

Voorzieningen

Regenwater
Vloerverwarming
Carport
Bestemming
Woongebied met landelijk karakter
VOOrkooprecht
Nee
Bouwvergunning
Ja
Watertoets
Niet overstromingsgevoelig
Verkaveling
Nee
50.9469
4370216
5.56014

Kempenseweg 48

Verkocht

€ 619.000

Koop

Meer info
50.9099
4370034
5.67279

Schuttershofstraat 52

Verkocht

€ 245.000

Koop

Meer info
50.9249
4367374
5.68289

Heirbaan 309

Verkocht

€ 649.000

Koop

Meer info
50.9033
4366280
5.68188

Fluwijnpad 3

Verkocht

€ 819.000

Koop

Meer info
50.8948
4365381
5.66451

Waterstraat 2 bus 2

Verkocht

€ 365.000

Koop

Meer info
50.89
4364564
5.66781

Bedrijfsweg 3

Verkocht

€ 499.000

Koop

Meer info
50.8991
4364562
5.67657

Tournebride 7

Verkocht

€ 575.000

Koop

Meer info
50.8293
4354828
5.53901

Op De Meer 1

Verkocht

€ 895.000

Koop

Meer info
50.7539
4352671
5.496

Sint-Medardusstraat 14

Verkocht

€ 299.000

Koop

Meer info
50.882
4352437
5.67695

Sapstraat 13

Verkocht

€ 579.000

Koop

Meer info
50.9068
4351150
5.68177

Delstraat 21 bus 2

Verkocht

€ 312.000

Koop

Meer info
50.9167
4349859
5.34788

Gouverneur Roppesingel 165 bus 102

Verkocht

€ 549.000

Koop

Meer info
50.8672
4349229
5.62534

Kiezelweg 155

Verkocht

€ 489.000

Koop

Meer info
50.8924
4346006
5.64747

Bessemerstraat 111

Verkocht

€ 225.000

Koop

Meer info
50.9087
4346786
5.68131

Keelhoffstraat 47

Verkocht

€ 249.000

Koop

Meer info
50.9045
4347225
5.67792

Seringenstraat 12

Verkocht

€ 750.000

Koop

Meer info
50.8913
4346445
5.65962

Drie Eikenstraat 14 bus 53

Verkocht

€ 449.000

Koop

Meer info
50.9012
4345985
5.63036

Roelerdreef 18

Verkocht

€ 425.000

Koop

Meer info
50.9106
4345627
5.67919

Paalsteenlaan 15 bus 4

Verkocht

€ 619.000

Koop

Meer info
50.8922
4343064
5.65062

Heuvelplein 9

Verkocht

€ 410.000

Koop

Meer info
50.9044
4341459
5.66868

Meesjesstraat 12

Verkocht

€ 1.650.000

Koop

Meer info
50.9249
4341295
5.68289

Heirbaan 309

Verkocht

€ 649.000

Koop

Meer info
50.8408
4341166
5.63031

Smisstraat 45

Verkocht

€ 795.000

Koop

Meer info
50.8945
4340968
5.66278

Koning Albertlaan 179

Verkocht

€ 660.000

Koop

Meer info
50.9469
4340576
5.56014

Kempenseweg 48

Verkocht

€ 645.000

Koop

Meer info
50.9167
4339872
5.34788

Gouverneur Roppesingel 165

Verkocht

€ 890.000

Koop

Meer info
50.9167
4339638
5.34788

Gouverneur Roppesingel 165

Verkocht

€ 639.000

Koop

Meer info
50.8966
4338919
5.66069

Waterstraat 47

Verkocht

€ 649.000

Koop

Meer info
51.089
4335250
5.6825

Drievekkenweg 70

Verkocht

€ 749.000

Koop

Meer info
50.9195
4334311
5.67833

Heidestraat 76

Verkocht

€ 790.000

Koop

Meer info
50.9577
4332619
5.67311

Jagerslaan 1 bus a

Verkocht

€ 1.290.000

Koop

Meer info
51.0975
4330685
5.69734

Ophovenstraat 125

Verkocht

€ 549.000

Koop

Meer info
50.8814
4304650
5.57225

Haenenstraat 4

Verkocht

€ 675.000

Koop

Meer info
51.0943
4301368
5.79425

Bleumerstraat 46 bus 11

Verkocht

€ 545.000

Koop

Meer info
50.8868
4280784
5.61267

Bergstraat 17B

Verkocht

€ 159.000

Koop

Meer info
50.9077
4280781
5.6687

Neerharenweg 32

Verkocht

Koop

Meer info
50.9434
4270265
5.7311

Bampstraat 43

Verkocht

€ 387.000

Koop

Meer info
51.0941
4268746
5.79411

Bleumerstraat 41

Verkocht

€ 337.000

Koop

Meer info
50.9072
4128058
5.66765

Neerharenweg 28

Verkocht

Koop

Meer info
50.8608
4112129
5.62232

Molenpoel 7

Verkocht

€ 149.000

Koop

Meer info
50.9256
4032239
5.67307

Sterrenlaan 19

Verkocht

€ 549.000

Koop

Meer info
50.7484
4032178
5.93563

Rue de la Forge 28

Verkocht

€ 140.000

Koop

Meer info
50.9087
3475395
5.67949

Schuttershofstraat lot1

Verkocht

€ 325.000

Koop

Meer info

Vragen of wenst u een bezichtiging?

Velden gemarkeerd met een (*) zijn verplicht.
Bedankt! We nemen z.s.m. contact met je op.
Oops! Something went wrong while submitting the form.